映像ホール/多目的ギャラリー 映像ホール/ 多目的ギャラリー Video Hall / Multipurpose Gallery
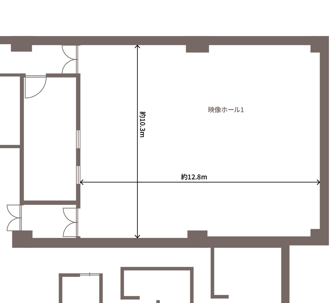
映像ホール1


地域の人たちにとって、「ここに来れば映画が楽しめる」そんな憩いの場でありたいと思っています。 新しい映画も、懐かしい映画も、どれもが誰かの心に残るもの。ちょっと寄り道するような気分でどうぞお越しください。
■DATA
座席数 100席(車椅子席2席を含む)
多目的ギャラリー


施設を象徴する丸い屋根の下には、ちょっと特別な空間が広がっています。映像や美術の作品があったり、地域の人が作ったものが飾られていたり。ここに来ると、「こんなものがあるんだ」「自分もやってみようかな」、そんな気持ちが湧いてくる場所です。

